Skip To Content

1910 State Road 16

St. Augustine, FL 32084
  • $2,700,000
  • STATUS: Active
  • ON SITE: 49 Days
  • MLS #: 2114353
UPDATED: 40 min ago
$2,700,000
  • 0
    BEDS
  • 3.5
    ACRES
  • 0
    BATHS
  • 0
    1/2 BATHS
Neighborhood:
Type:
Vacant Land / Lots
County:

School Information

Elementary School:
Middle School:
High School:

Description

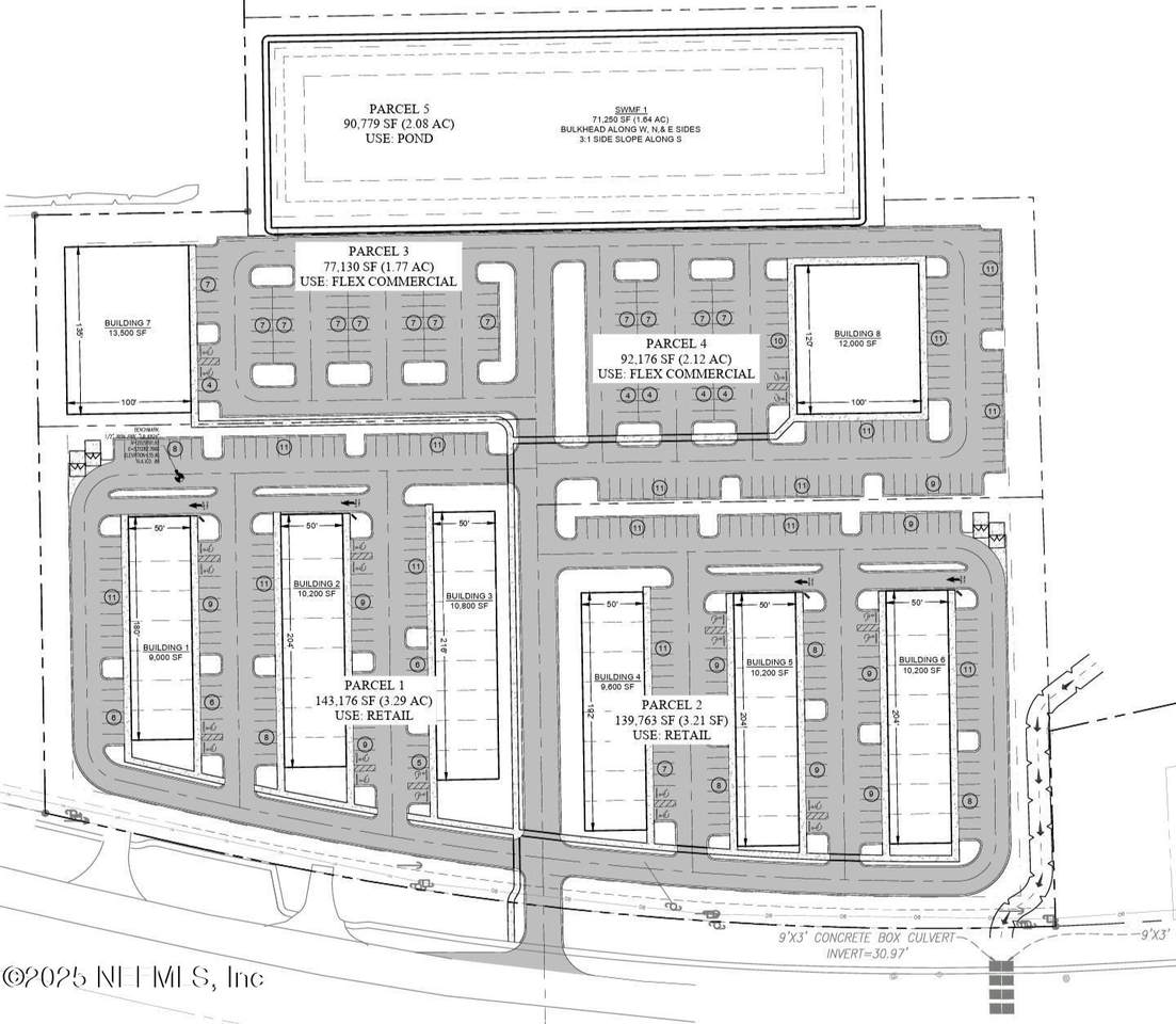
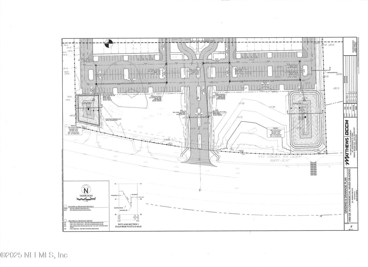
412 Foot Frontage per each 3.5 acre parcel or 823.5 Frontage for both (per tax roll). This is directly on SR 16 which is the Main Road in and out of Old St. Augustine, Fl. The $2.7M price is for the 3.5 acre site on the E. side of the drive. Site W of drive is mostly dry & has income. On last review there were only two other larger parcels available in the area. One had 200 ft and the other 225 feet of Frontage on 16. Please note that the 1900 (listing # 2114333) & this 1910 SR 16 listings are the same parcel with different approaches as to how it is marketed and developed. To be clear there are two engineer generated site plans in the works for this site depending on the developers vision and needs. Virtually all of SR 16 has become a High Demand/High Development Area. The vast majority of sites available two years ago are now in some phase of development. 3 of the 4 new housing projects in the area have recently come directly to 16 (please see pics regarding these developments). The upscale Tapestry located just to the West of subject site finished construction & is currently leasing. Another in the 1100 block of SR 16 & another in the 800 to 900 blk of SR 16 starts construction in Q1 2026. 2 of the 3 new housing starts are for 300+. The 4th housing development (Terrassa) is just N of 16 and E. of I-95 where the high end outlet mall was. Terrassa is also over 300 luxury apts. This high growth area is in need of commercial services to satisfy Mushrooming demand. Due to exposure this site qualifies as Prime. Non-residential projects being built on 16 include a dental bldg w a coffee shop and an emergency care bldg in the 800 block. An exotic car dealership (Sunday Drive) is coming soon to the 2100 block of 16. Lastly Atlantic Marine is soon to build a new boat showroom in the 2200 block of SR 16. The full 12 acre site (Listing # 2114333) is in the process of being planned & permitted for potential entitlements up to 100,000 sqft. In this 1910 SR 16 site plan it is geared for the developer and end user looking to take maximum advantage of the top end traffic count of roughly 43K/day (see attachment line 93.2). Note there is a Median Cut already in place on 16 going directly into the drive providing easy access for customers going in either direction. There will be two buildable 3 acre sites on each side plus a 1/2 acre retention in back of each for a total of 3.5 acres each side. Clients can purchase the full 7 acres or one full side (3.5 ac) or as little as 1.15 acres which includes their portion of the retention. Any which way you slice it your client can not possibly get better exposure than these sites afford. These full 3.5 acre sites will be ideal for your clients looking to build structures in the 15 to 30,000 ft range such as Convenience stores w gas pumps like Circle K, 7-11, Race Trac or even Buc-ee's. Other good fits are grocers like Trader Joe's, Sprouts, Fresh Market or popular Fitness Studios Zoning in front CI & CHT rear DO NOT DISTRURB TENANT!! In the alternate 12 acre 1900 SR 16 site plan (see listing # 255876) there are two smaller outparcels of approx 1.4 acres in front ideal for QSR's (quick serve restaurants like Five Guys, Cava, BurgerFi or Panda Express, Drive-Thru coffee & Beverage Shops like Dutch Brothers or Ellianos, Banks-Credit Unions, Urgent Care/Medical Office/Vision Care i.e. America's Best Contacts, or Dental like Heartland or Deca Dental. Also needed is a Pharmacy w Drive-Thru. Specialty Retail like Mattress Firm, Auto Zone, O'Reilly's or Wireless Providers. Car washes like Mr. Clean, Tommy's Tidal Wave or Mister Car Wash. Also a good fit for auto accessory shops like Tint World, Black Optix, Line-X or Color Glo. In the 1900 SR 16 site plan, in back of the outparcels there will be 2 sets of strip stores on either side of the driveway. Both w drive thru end caps. These retail strips could offer the needed services such as hair and nail salon, barber, dry cleaner, beauty supply, mini bank branche

Monthly Payment Calculator



© 2025 Northeast Florida Multiple Listing Service, Inc. All rights reserved. The data relating to real estate for sale on this web site comes in part from the Internet Data Exchange (IDX) program of the Northeast Florida Multiple Listing Service, Inc. Real estate listings held by brokerage firms other than Endless Summer Realty are marked with the listing broker’s name and detailed information about such listings includes the name of the listing brokers. Data provided is deemed reliable but is not guaranteed. Data last updated 2025-12-10T20:24:58.803.

Digital Millennium Copyright Act
www.endlesssummerrealty.com/homes/169109833
Print Image

1910 State Road 16 St. Augustine, FL 32084

  • Price: $2,700,000
  • Status: Active
  • On Site: 49 Days
  • Updated: 40 min ago
  • MLS #: 2114353
0
Beds
0
Baths
0
½ Baths
3.5
Acres
Neighborhood:
Ravenswood
County:
St. Johns
Area:
336-RAVENSWOOD/WEST AUGUSTINE
Elementary School:
Crookshank
Middle School:
Murray
High School:
St. Augustine
Property Description
412 Foot Frontage per each 3.5 acre parcel or 823.5 Frontage for both (per tax roll). This is directly on SR 16 which is the Main Road in and out of Old St. Augustine, Fl. The $2.7M price is for the 3.5 acre site on the E. side of the drive. Site W of drive is mostly dry & has income. On last review there were only two other larger parcels available in the area. One had 200 ft and the other 225 feet of Frontage on 16. Please note that the 1900 (listing # 2114333) & this 1910 SR 16 listings are the same parcel with different approaches as to how it is marketed and developed. To be clear there are two engineer generated site plans in the works for this site depending on the developers vision and needs. Virtually all of SR 16 has become a High Demand/High Development Area. The vast majority of sites available two years ago are now in some phase of development. 3 of the 4 new housing projects in the area have recently come directly to 16 (please see pics regarding these developments). The upscale Tapestry located just to the West of subject site finished construction & is currently leasing. Another in the 1100 block of SR 16 & another in the 800 to 900 blk of SR 16 starts construction in Q1 2026. 2 of the 3 new housing starts are for 300+. The 4th housing development (Terrassa) is just N of 16 and E. of I-95 where the high end outlet mall was. Terrassa is also over 300 luxury apts. This high growth area is in need of commercial services to satisfy Mushrooming demand. Due to exposure this site qualifies as Prime. Non-residential projects being built on 16 include a dental bldg w a coffee shop and an emergency care bldg in the 800 block. An exotic car dealership (Sunday Drive) is coming soon to the 2100 block of 16. Lastly Atlantic Marine is soon to build a new boat showroom in the 2200 block of SR 16. The full 12 acre site (Listing # 2114333) is in the process of being planned & permitted for potential entitlements up to 100,000 sqft. In this 1910 SR 16 site plan it is geared for the developer and end user looking to take maximum advantage of the top end traffic count of roughly 43K/day (see attachment line 93.2). Note there is a Median Cut already in place on 16 going directly into the drive providing easy access for customers going in either direction. There will be two buildable 3 acre sites on each side plus a 1/2 acre retention in back of each for a total of 3.5 acres each side. Clients can purchase the full 7 acres or one full side (3.5 ac) or as little as 1.15 acres which includes their portion of the retention. Any which way you slice it your client can not possibly get better exposure than these sites afford. These full 3.5 acre sites will be ideal for your clients looking to build structures in the 15 to 30,000 ft range such as Convenience stores w gas pumps like Circle K, 7-11, Race Trac or even Buc-ee's. Other good fits are grocers like Trader Joe's, Sprouts, Fresh Market or popular Fitness Studios Zoning in front CI & CHT rear DO NOT DISTRURB TENANT!! In the alternate 12 acre 1900 SR 16 site plan (see listing # 255876) there are two smaller outparcels of approx 1.4 acres in front ideal for QSR's (quick serve restaurants like Five Guys, Cava, BurgerFi or Panda Express, Drive-Thru coffee & Beverage Shops like Dutch Brothers or Ellianos, Banks-Credit Unions, Urgent Care/Medical Office/Vision Care i.e. America's Best Contacts, or Dental like Heartland or Deca Dental. Also needed is a Pharmacy w Drive-Thru. Specialty Retail like Mattress Firm, Auto Zone, O'Reilly's or Wireless Providers. Car washes like Mr. Clean, Tommy's Tidal Wave or Mister Car Wash. Also a good fit for auto accessory shops like Tint World, Black Optix, Line-X or Color Glo. In the 1900 SR 16 site plan, in back of the outparcels there will be 2 sets of strip stores on either side of the driveway. Both w drive thru end caps. These retail strips could offer the needed services such as hair and nail salon, barber, dry cleaner, beauty supply, mini bank branche
Exterior Features

Fencing Chain Link Lot Features Split PossibleWetlands Other Structures [] Pool Features [] Road Surface Type Asphalt View PondTrees/Woods Waterfront Features [] Waterfront YN No

Property Features

Association Amenities [] Association Fee Includes [] Association YN No Cdd Fee YN No Current Use CommercialInvestmentMixed Use Electric 200+ Amp Service Listing Terms CashConventional Possession Close Of Escrow Property Sub Type Unimproved Land Security Features [] Senior Community YN No Sewer Septic Tank Utilities Cable AvailableElectricity ConnectedSewer AvailableWater Available Water Source Private Zoning Commercial

Listing courtesy of FLORIDA HOMES REALTY & MTG LLC: 904-996-9115.


© 2025 Northeast Florida Multiple Listing Service, Inc. All rights reserved. The data relating to real estate for sale on this web site comes in part from the Internet Data Exchange (IDX) program of the Northeast Florida Multiple Listing Service, Inc. Real estate listings held by brokerage firms other than Endless Summer Realty are marked with the listing broker’s name and detailed information about such listings includes the name of the listing brokers. Data provided is deemed reliable but is not guaranteed. Data last updated 2025-12-10T20:24:58.803.

Digital Millennium Copyright Act
 
https://bt-photos.global.ssl.fastly.net/nefar/1280_boomver_1_2114353-2.jpg https://bt-photos.global.ssl.fastly.net/nefar/1280_boomver_1_2114353-2.jpg https://bt-photos.global.ssl.fastly.net/nefar/1280_boomver_1_2114353-2.jpg
Logo
Endless Summer Realty
521 A1A Beach Blvd
St. Augustine FL, 32080